Courtesy of: Anna Priskie, Compass Greater NY, LLC
(MLS# COMPNY09)
Inquire About It
Schedule A Showing
About 2040 Crompond Road, Yorktown Heights, New York, 10598
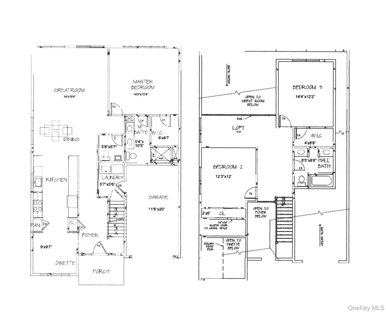
Hallocks Square a spectacular offering by Boniello development. A new community of 23 luxury townhomes perfectly sited in the center of Yorktown Heights. Welcome to our Legacy model. Designed for modern living, featuring 3 bedrooms, 2.1 baths, an open loft and 2133 square feet of finished living space. The primary suite w/ a spa bath & laundry room are both conveniently located on the main level & all units offer full basements w/ finish options + a 1 car garage & patio. High quality construction amenities include hardwood flooring, 9' ceilings on the 1st floor, electric fireplace, custom cabinetry, quartz countertops, GE appliances & a superior tile selection. This unit features an upgraded appliance and trim package, faucet/plumbing upgrade plus additional wall tile. Energy efficiency is at the heart of our design philosophy and includes LED lighting, Energy Star appliances, spray foam insulation, irrigation system and efficient HVAC system. Experience the ease of turnkey living featuring low taxes, utilites & HOA fees. Our Homeowners Association takes care of all outdoor maintenance, allowing a hassle-free lifestyle. Located w/in walking distance to shopping, restaurants & in close proximity to schools & Taconic State Pkwy. This community is designed to meet the needs of today's lifestyle, emphasizing convenience, luxury and sustainability.
Street Address: 2040 Crompond Road
City: Yorktown Heights
State: New York
Postal Code: 10598
Property Information :
Listing Status: Active
MLS #: 802073
Bedrooms: 3 bd
Bathrooms: 2.5 ba
Price: $967,900
Tax Amount: 11100
Construction Status: Built in 2024
Last Modified : Dec 15 2025 4:18AM
Courtesy of: Anna Priskie, Compass Greater NY, LLC (MLS# COMPNY09)