About TBD SW 20TH PLACE, Ocala, Florida, 34471
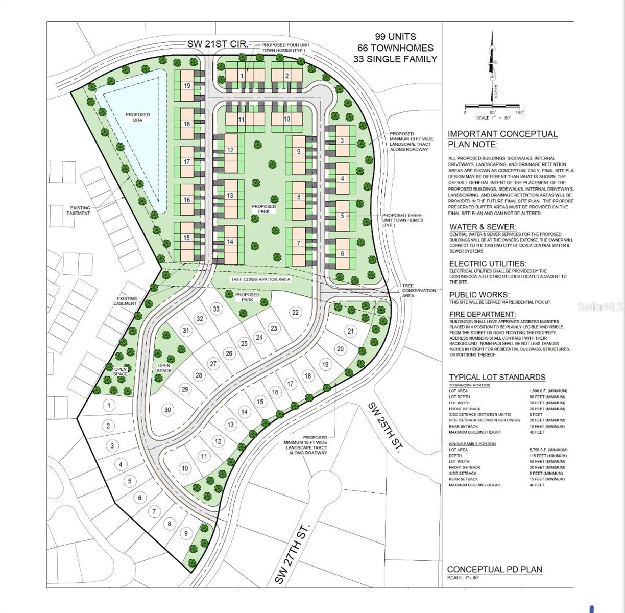
Nestled in the heart of Ocala, Willow Creek at Cala Hills presents an exceptional opportunity for residential development within one of the area’s most desirable established communities. This ±22-acre site is fully entitled and ready for the next phase of growth, with city water and sewer already to the property and an HOA in place. The approved site plan offers flexibility for a mix of 66 townhomes and 33 single- family homes, or alternatively, 68 single-family homes—allowing developers to tailor the product mix to meet market demand. The property benefits from existing community infrastructure, attractive surrounding neighborhoods, and convenient access to major corridors, employment centers, and retail amenities. With survey and site plan in hand, Willow Creek at Cala Hills offers a rare “plug- and-play” opportunity for builders or investors seeking a prime infill development site in the core of Ocala’s rapid residential expansion zone. Ocala & Marion County Growth Highlights Top Growth Market: Ocala ranks among Florida’s Top 10 Fastest-Growing Metros and has been recognized by the U.S. Census Bureau for its consistent population and job growth. Population Surge: Marion County’s population exceeds 400,000 and continues to grow at over 2% annually, fueled by in-migration from across the U.S. Strong Employment Base: Anchored by healthcare, logistics, and advanced manufacturing, Ocala is home to major employers like FedEx, Chewy, Amazon, Cardinal LG, and Reilly Arts Center’s expanding cultural hub. Connectivity: Centrally located within 90 minutes of Orlando,
Utilities : BB/HS Internet Available
Water Access : 0
Sewer : Public Sewer
Lot Features : Buildable
Road Surface Type : Asphalt
Zoning : PD
Utilities : BB/HS Internet Available
Water Access : 0
Sewer : Public Sewer
Lot Features : Buildable
Road Surface Type : Asphalt
Zoning : PD

Street Address: TBD SW 20TH PLACE
City: Ocala
State: Florida
Postal Code: 34471
County: Marion
Directions: From I-75 take exit 350 for FL200E Silver Springs BLVD SW College Road towards Ocala At ramp turn East , left onto FL200 SW College Road Continue 2.5 Miles on Fl 200 past Paddock Mall and Target Turn Right onto Sw 27th Avenue SW 20th Avenue Road. Look for Cala Hills signage Proceed .9 miles and turn left onto SW 21st Circle Follow the curve of SW 21st Circle SE .5 miles Property at curve Landmark reference to opposite of Cala Hills Recreation Area / Clubhouse SW 21 Circle & SW 20 Avenue Road Ocala Fl 34471 Coordinates 29.1623N, -82.1688W

Property Information :
Listing Status: Active
Lot Size: 22.00 Acres
MLS #: A4670301
Bathrooms: 0 ba
Price: $5,000,000
Tax Amount: 5230.83
Last Modified : May 8 2026 1:37AM

Courtesy of: Anna Holt, COMPASS FLORIDA LLC (MLS# 274501900)
Source MLS: StellarMLS