About 2315 FLORIDA Street Unit# 400, Mandeville, Louisiana, 70448
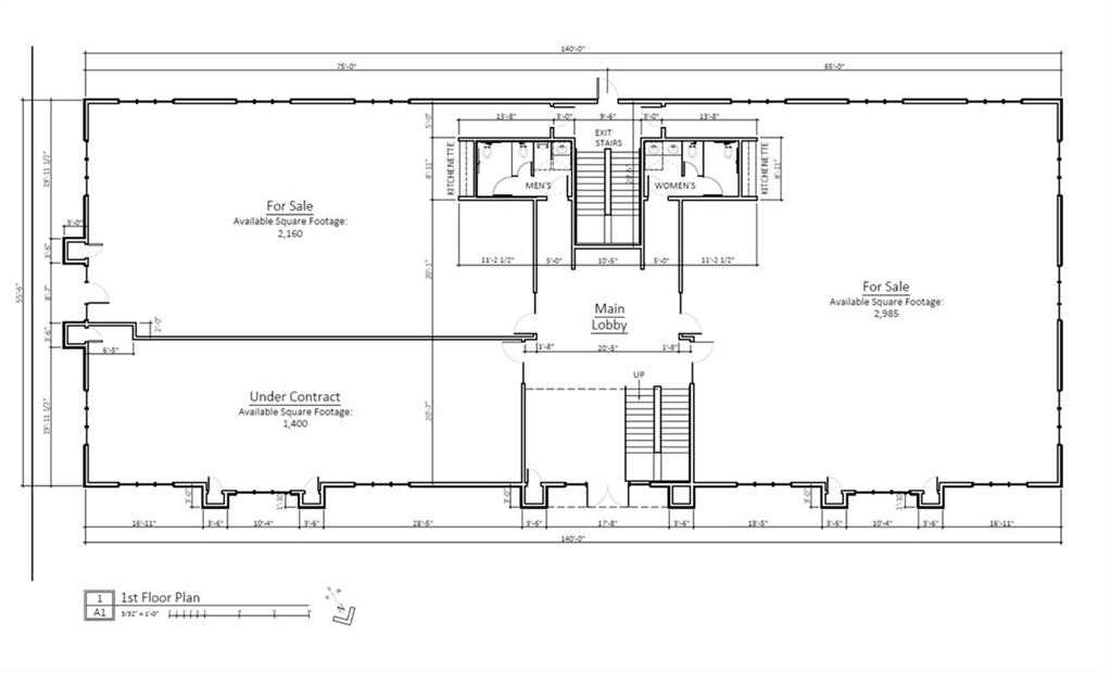
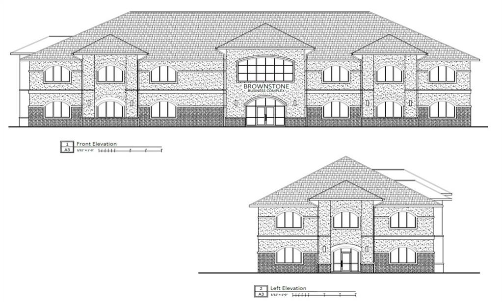
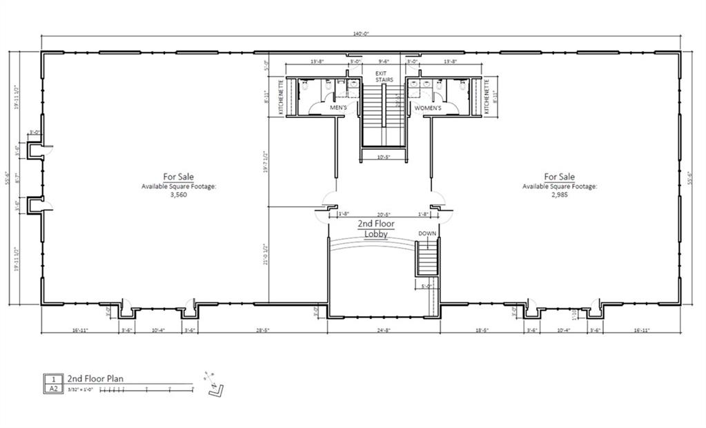
Welcome to "Brownstone Office Park" Mandeville's Premier Office Park and host to some of Greater New Orleans Top businesses. Our Newest addition is a 15,810 SF Business Complex offering ample parking space with up to 65 spaces. Brownstone's New Business Complex can be purchased in it's entirety or be subdivided into a size that is tailored to fit your business needs. The developer is able to build the unit to suit the needs of the buyer with estimated completion approximately 12 months after contract. The minimum space that will be offered by developer will be 1,400 SF. Brownstone is perfectly located on Hwy 190 also known as Florida Street in Old Mandeville this new business Complex will offer easy access to the Causeway for commuters, ability to fuel up in minutes with a Race Track Station nearby, Restaurants, Shopping as well as Old Mandeville's Lakefront for when you need to a break or a leisurely stroll down Girod to do a little business.
Water Source : Public
Sewer : Public Sewer
Parking Features: Parking Lot
Accessibility Features: Accessibility Features
Lot Features : Outside City Limits
Construction Materials: Stone, Stucco
Levels : Two
Zoning:Comm
Water Source : Public
Sewer : Public Sewer
Parking Features: Parking Lot
Accessibility Features: Accessibility Features
Lot Features : Outside City Limits
Construction Materials: Stone, Stucco
Levels : Two
Zoning:Comm

Street Address: 2315 FLORIDA Street Unit# 400
City: Mandeville
State: Louisiana
Postal Code: 70448

Property Information :
Listing Status: Active
Size: 1,400 Sqft
MLS #: 2525913
Bedrooms: 0 bd
Bathrooms: 0 ba
Price: $371,001
Construction Status: Built in 2026
Last Modified : Dec 15 2025 3:41AM

Courtesy of: JOHN CERNIGLIA, PREMIER PROPERTIES NORTHSHORE (MLS# PPNS01)
Source MLS: GSREIN