About 16 JAQUELINE Court Unit# 16, Mandeville, Louisiana, 70471
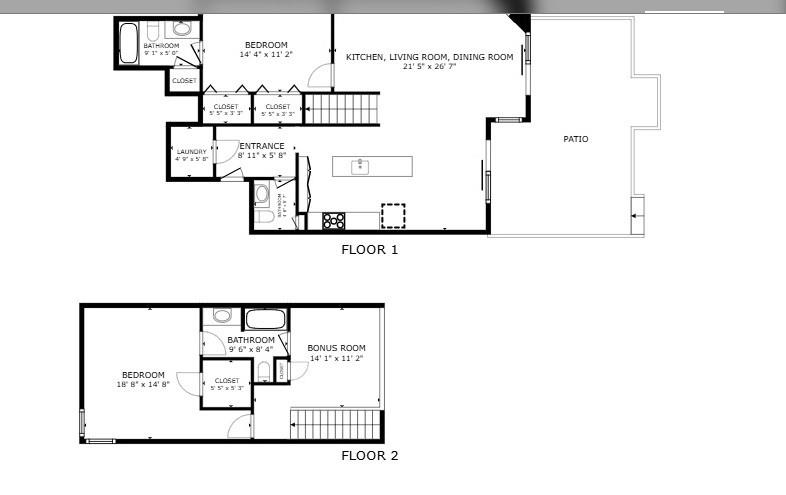
Peaceful view of the marina from this charming condo in Beau Chene which has lots of fresh paint, new plank floors installed and new quartz counters! As an end unit, it offers added privacy along with abundant natural light streaming through expansive sliding glass doors. The open-concept living and dining area is anchored by a beautiful brick fireplace, creating a warm and welcoming space. This home features 2 bedrooms, 2.5 baths, and a spacious loft—perfect for a home office, workout space, or creative studio. You’ll love the extra-large closets and generous storage throughout. A new roof was installed in October 2022, providing peace of mind for years to come. Set within the gated, scenic, and friendly community of Beau Chene, residents enjoy access to Mandeville’s highly rated public schools along with available premier amenities: a 36-hole championship golf course, 10 tennis courts, pool, fitness facility, and the country club. This condo is a wonderful opportunity to enjoy the Beau Chene lifestyle at an excellent value with minimal maintenance.
Water Source : Public
Sewer : Public Sewer
Parking Features: Driveway, Parking Available
Security Features : Security System, Building Security
Exterior Features: Porch
Patio And Porch Features : Wood, Porch
Lot Features : Corner Lot, Outside City Limits
Architectural Style : Traditional
Property Condition : Very Good Condition
Pool Features:Community, In Ground
20 Unit(s)
Appliances : Dishwasher, Microwave, Range
Heating : Yes.
Heating System : Central
Cooling: Central Air
Construction Materials: Vinyl Siding
Foundation Details: Slab
Levels : One and One Half
Roof Type: Shingle
Interior Features: Attic, Ceiling Fan(s), Cathedral Ceiling(s), High Ceilings, Stone Counters, Stainless Steel Appliances, Vaulted Ceiling(s)
Fireplace : Yes.
Fireplace Features: Wood Burning
Laundry Features : In Unit, Washer Hookup, Dryer Hookup
Water Source : Public
Sewer : Public Sewer
Parking Features: Driveway, Parking Available
Security Features : Security System, Building Security
Exterior Features: Porch
Patio And Porch Features : Wood, Porch
Lot Features : Corner Lot, Outside City Limits
Architectural Style : Traditional
Property Condition : Very Good Condition
Pool Features:Community, In Ground
20 Unit(s)
Appliances : Dishwasher, Microwave, Range
Heating : Yes.
Heating System : Central
Cooling: Central Air
Construction Materials: Vinyl Siding
Foundation Details: Slab
Levels : One and One Half
Roof Type: Shingle
Interior Features: Attic, Ceiling Fan(s), Cathedral Ceiling(s), High Ceilings, Stone Counters, Stainless Steel Appliances, Vaulted Ceiling(s)
Fireplace : Yes.
Fireplace Features: Wood Burning
Laundry Features : In Unit, Washer Hookup, Dryer Hookup

Street Address: 16 JAQUELINE Court Unit# 16
City: Mandeville
State: Louisiana
Postal Code: 70471

Property Information :
Listing Status: Active
Size: 1,675 Sqft
MLS #: 2523324
Bedrooms: 2 bd
Bathrooms: 2 ba
Price: $239,000
Construction Status: Built in 1982
Last Modified : Dec 16 2025 3:59AM
Amenities :
Fireplace

Courtesy of: Tammy Whitehead, LATTER & BLUM (LATT15) (MLS# LATT15)
Source MLS: GSREIN