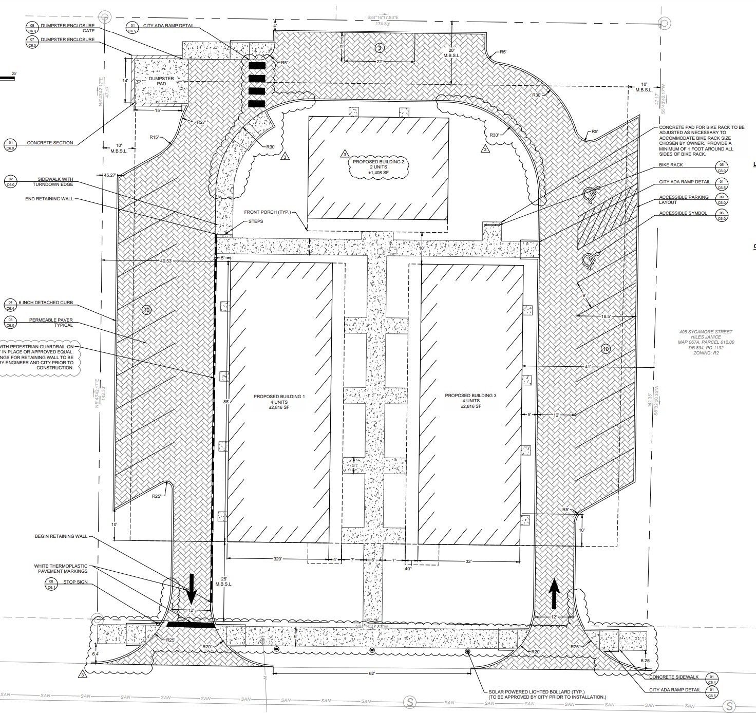
About 329 Sycamore St, Lebanon, Tennessee, 37087
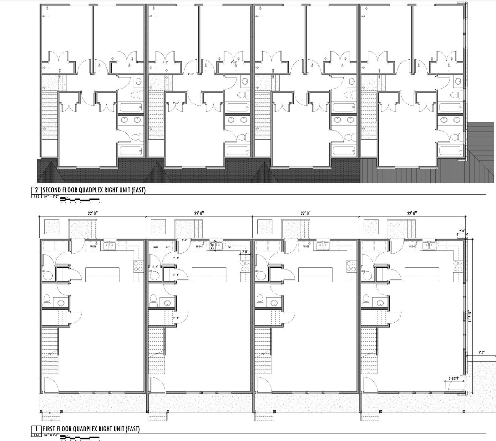
Plans are fully approved by the City of Lebanon and ready to build 10 townhomes. Builders and investors, this one is the real deal. Purchase comes with full set of approved site plans. It's extremely rare to be able to find a project like this that you can move on immediately. Located just blocks off of the bustling Lebanon Square and even closer to grocery, gas. Only 5 minutes to I-40 and just seconds from US Highways 70 & 231 and state highway 141. Homes are roughly 1500+/- sq ft each with 3 beds 2.5 baths and 2 parking spots each. Comparable rents in the area are around $2,000 for this type of unit. This is a fantastic long term play in Lebanon! Lot previously had a home one it that has been removed. Utilities including gas, water, electric and sewer are on site.
Water Source : Public
Sewer Source : Public Sewer
Lot Features : Level
Lot Size Source : Calculated from Plat
Property has a View :
Topography: Level
Water Source : Public
Sewer Source : Public Sewer
Lot Features : Level
Lot Size Source : Calculated from Plat
Property has a View :
Topography: Level

Street Address: 329 Sycamore St
City: Lebanon
State: Tennessee
Postal Code: 37087
County: Wilson
Directions: From I-40 E: Take exit 239B to merge onto US-70 W toward Lebanon. Turn left onto Floral St. Turn right onto Sycamore St. Property is on the right!

Property Information :
Listing Status: Active
Lot Size: 0.78 Acres
MLS #: 2996381
Price: $449,999
Tax Amount: 260
Last Modified : Dec 15 2025 2:19AM

Courtesy of: Kenny Sallis, Sallis Realty Group (MLS# RTC5595)
Source MLS: Realtracs