About 361 CENTRAL AVE, Jersey City, New Jersey, 07307
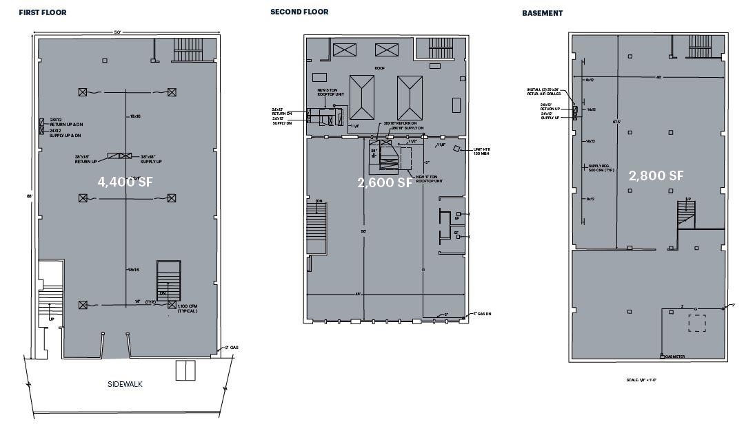
Prime Development Opportunity in Booming Jersey City! Unlock the full potential of this high-visibility property at 361 Central Avenue, located in the heart of Jersey City’s thriving Central Business District. This expansive 9,800 SF commercial space offers immediate income potential while sitting on a zoned development site allowing up to 5 stories – with ground-floor commercial and residential units above (2nd–5th floors). Build 12 2 Bed 2 Bath 950+- Sq Ft units above the retail or 16-20 1 Bed 1 Bath Units. This is a rare opportunity for investors or developers to capitalize on Jersey City’s continued growth and strong demand for mixed-use residential properties. Flexible zoning allows for a variety of configurations: upscale apartments, condos, or long-term rentals – all above an anchor retail space in a well-trafficked corridor.
Sprinklers : Wet
Section : Heights
Between : Bowers & Charles
Sprinklers : Wet
Section : Heights
Between : Bowers & Charles

Street Address: 361 CENTRAL AVE
City: Jersey City
State: New Jersey
Postal Code: 07307

Property Information :
Listing Status: Active
MLS #: 250012942
Price: $2,650,000
Tax Amount: 39000
Last Modified : Oct 2 2025 10:05PM

Courtesy of: JASON PASCALE, SMART CHOICE REALTY LLC (MLS# 1821)
Source MLS: HMLS-NJ