About 729 Belleza View, Colorado Springs, Colorado, 80907
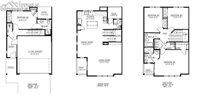
Modern Mountain Living at Its Finest! Discover turn-key luxury and maintenance-free living in these exquisite townhomes just minutes from both the mountains and downtown. Enjoy breathtaking city and mountain views from your meticulously designed space. Interior Highlights: - 9' ceilings and designer finishes - Abode Edyn cabinets with hidden hinges - Quartz countertops with 6" tile backsplash - Stainless steel appliances, including a gas range - Luxurious baths with ceramic tile showers and pedestal sinks Energy Efficiency: - Rheem tankless water heater - LED lighting throughout - Pre-wired for air conditioning Exterior Excellence: - Cape Cod moisture shield composite decking - Full landscaping for a polished finish The Peak View floor plan features a finished ground-floor guest suite and bath 351 sq ft, offering flexibility and comfort. Centennial Townhomes are ideally located minutes from Garden of the Gods, hiking trails, shopping, downtown, and highway access. Perfect for first-time buyers, those right-sizing, or savvy investors. Breaking ground now, with completion expected Fall 2026
Utilities : Cable Available, Electricity Available, Natural Gas Available
Water : Municipal
Garage Type : Attached
Garage Spaces : 2
Driveway : Concrete
Main Floor Area : 805 S.F
Upper Floor Area : 825 S.F
Construction Status: To Be Built
Foundation Details : Slab
Unit Description : End Unit
Basement Percent Finished : 100
Laundry Facilites : Electric Hook-up, Upper
Green Energy Star Qualified : Yes.
Green Hers Score : Yes.
Green LEED: Yes.
Green SolarPV : Yes.
Green Solar Thermal : Yes.
Notices : Builder Owned
Utilities : Cable Available, Electricity Available, Natural Gas Available
Water : Municipal
Garage Type : Attached
Garage Spaces : 2
Driveway : Concrete
Main Floor Area : 805 S.F
Upper Floor Area : 825 S.F
Construction Status: To Be Built
Foundation Details : Slab
Unit Description : End Unit
Basement Percent Finished : 100
Laundry Facilites : Electric Hook-up, Upper
Green Energy Star Qualified : Yes.
Green Hers Score : Yes.
Green LEED: Yes.
Green SolarPV : Yes.
Green Solar Thermal : Yes.
Notices : Builder Owned

Street Address: 729 Belleza View
City: Colorado Springs
State: Colorado
Postal Code: 80907
County: El Paso

Property Information :
Listing Status: Active
Size: 1,981 Sqft
Lot Size: 0.03 Acres
MLS #: 8183713
Bedrooms: 4 bd
Bathrooms: 4 ba
Price: $609,888
Tax Amount: 0.00
Construction Status: Built in 2025
Last Modified : Dec 15 2025 3:58AM
Amenities :
Fence
Patio

Courtesy of: Leslie Castle, The Platinum Group (MLS# 00001030)
Source MLS: PPMLS