About 79 TIDY ISLAND BLVD, Bradenton, Florida, 34210
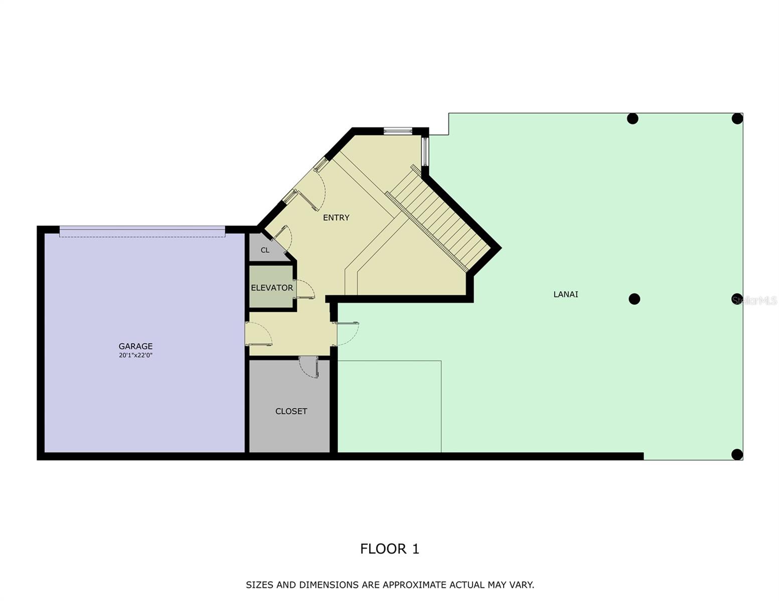
One or more photo(s) has been virtually staged. Come discover a community like no other! Tidy Island is a unique private gated family & pet friendly community situated on 240 acres of protected preservation, wildlife and bird sanctuaries on Sarasota Bay. Only 3 miles to the glorious Gulf beaches of Anna Maria Island. 79 Tidy Island Blvd sits quietly tucked away on the west end. Featuring breathtaking bay views of Longboat Key, Intracoastal waterway and downtown Sarasota. Enter the wide foyer with storage room, off set 2 car garage with glossy epoxy flooring and convenient elevator servicing main living level. Additionally, covered ground level private patio with marble flooring makes the perfect entertainment space and opportunity for outdoor kitchen with gas, water and electric connections. Open floor plan living area accented by soaring ceilings with bonus skylights, bamboo flooring and walls of bayfront windows draw your eye to the sparkling water. Spacious bayfront living room with gas fireplace adjoins the dining area with built ins and wet bar. Family room off the kitchen opens to dramatic sunroom with raised floor, and vaulted ceiling and floor to ceiling windows and sliders with uninterrupted bay views. A Trex deck ideal for outdoor enjoyment has water, gas and electric connections. The chef in the family will enjoy the eat in kitchen with large island, wine refrigerator, stone countertops, solid wood cabinetry, Dacor 6-burner gas range, convection oven, warming drawer, Fisher & Paykel dual dishwasher drawers and LG refrigerator. Primary suite has built in shelving and is nestled in the tree tops with windows framed by plantation shutters. Amazing primary bath features Quartz countertops, bamboo cabinetry, dual sinks, hidden outlets, bidet toilet, and walk-in shower with rain head, body sprays, and bench. Laundry room and powder complete the main level. The third level opens to spacious loft with Brazilian cherrywood flooring adding bonus space for den, office or playroom. The two guest bedrooms feature plantation shutters, high ceilings and share the hall full bath. Upgrades include: bayside impact windows, central vacuum system, roof 2021, tankless electric water heater 2024 and 2 Acs in 2025. Tidy Island amenities include 24/7 guarded gatehouse, two pools & hot tubs, a fitness center, tennis courts & Pickleball courts , clubhouse with social activities, onsite management, kayak storage & launch with scenic boardwalk & walking trails. Convenient Bradenton location is close to IMG Academy, Blake Hospital, G.T. Bray Park, the YMCA, medical offices, restaurants and shopping. A short drive away awaits the Riverwalk, Robinson Preserve, DeSoto National Park and Palma Sola Botanical Gardens. Sarasota is within a 30 minute drive to St Armand's Circle, Van Wezel Preforming Arts, Sarasota Opera House, Asolo Theater and Selby Gardens. Tampa Bay and St Petersburg to the north offer Tropicana Field, Raymond James Stadium, Amelia Arena and Busch Gardens. Or plan a day trip to Orlando for parks of Disney World and Universal Studio only a 2.5 hours drive. Ask your Realtor to schedule your private showing today.
Utilities : BB/HS Internet Available
Water Access : 1
Sewer : Public Sewer
Garage On Property : Yes.
Garage Spaces: 2
Exterior Features : Balcony
Road Surface Type : Paved
Roof : Shingle
Heating : Central
Cooling : Central Air
Construction Materials : Block
Interior Features : Accessibility Features
Laundry Features : Laundry Chute
Appliances : Convection Oven
Flooring : Bamboo
Utilities : BB/HS Internet Available
Water Access : 1
Sewer : Public Sewer
Garage On Property : Yes.
Garage Spaces: 2
Exterior Features : Balcony
Road Surface Type : Paved
Roof : Shingle
Heating : Central
Cooling : Central Air
Construction Materials : Block
Interior Features : Accessibility Features
Laundry Features : Laundry Chute
Appliances : Convection Oven
Flooring : Bamboo

Street Address: 79 TIDY ISLAND BLVD
City: Bradenton
State: Florida
Postal Code: 34210
County: Manatee
Directions: Cortez Rd W then South on 86th St W past the guard gate to #79

Property Information :
Listing Status: Active
Size: 3,238 Sqft
MLS #: A4666003
Bedrooms: 3 bd
Bathrooms: 2.5 ba
Price: $1,299,000
Tax Amount: 5489
Construction Status: Built in 1984
Last Modified : Dec 15 2025 1:44AM
Amenities :
Fireplace

Courtesy of: Liz Codola, ISLAND REAL ESTATE-ANNA MARIA (MLS# 266500093)
Source MLS: StellarMLS